D.. 떡카페 디자인
ㆍ상업공간
design concept: "떡까페" 디자인 및 설계 의뢰건...
브라운컬러와 원목(오크)의 조화로, 기존의 떡집 분위기 탈피.
작은공간을 역이용 하여 아담한 카페 분위기 연출.
소재 : 선반-천연 무늬목, 그외-친환경 도료 사용
interior 구성 :
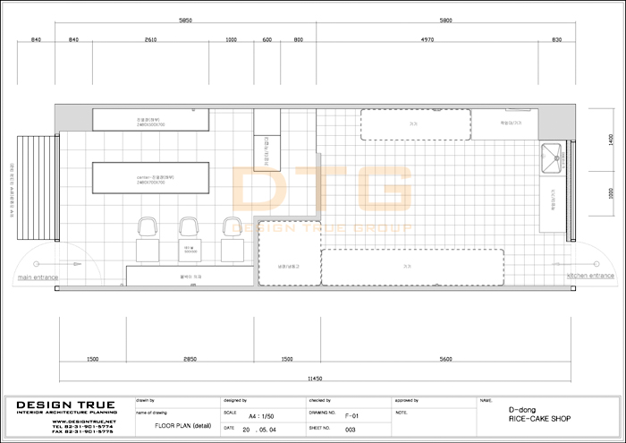
14평규모로 홀(진열공간), 카운터, 주방, 탕비실...
"DESIGN TRUE" work...
-현장컨설팅, 현장실측, 디자인(3DC.G), CAD도면(평면도&입면도).
-시공- 점주 직접 발주 및 직영시공...
*디자인트루 사이트에 게재된 디자인/시공/3D C.G/CAD 관련 이미지 및 디자인의 저작권은 디자인트루 본사에
있으므로 불법도용으로 인한 민형사상 법적 책임을 질 수 있습니다.

-3D C.G-




-CAD-


-시공전-

*디자인트루 사이트에 게재된 디자인/시공/3D C.G/CAD 관련 이미지 및 디자인의 저작권은 디자인트루 본사에
있으므로 불법도용으로 인한 민형사상 법적 책임을 질 수 있습니다.
기타 궁금한 사항은 "디자인트루"(DTG, 디티지)에 문의 주시기 바랍니다.
TEL : 031) 901-5774
"디자인트루" 업무시간 : 월~금, 오전09시~오후06시 (토/일/공휴일 휴무)
'상업공간' 카테고리의 다른 글
| 키즈까페 -치로와 친구들- Design Concept (0) | 2025.07.18 |
|---|---|
| 아로마 샵 (0) | 2025.07.18 |
| 파비올라스 BAKERY & CAFE (0) | 2025.07.18 |
| H.. 선반 디자인 의뢰 (0) | 2025.07.18 |
| H.. 이동매장 차량디자인 (0) | 2025.07.18 |