아로마 샵

상업공간

design concept: 양키켄들 & 아로마샵...

그린 컬러와 원목(오크)의 조화로 천연의 이미지 극대화.

제품의 디스플레이를 위한 선반을 중심으로 하여 자작나무를 접목 배치하여, 자연을 모티브로한 디자인 접목.

소재 : 선반-천연 무늬목, 그외-친환경 도료 사용

 

interior 구성 : 

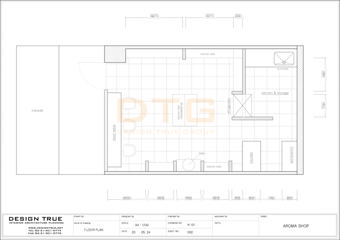
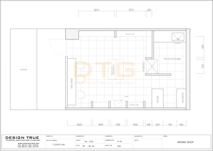
8평규모로 홀(진열공간), 카운터, 탕비실, 외부 테크공간...

 

"DESIGN TRUE" work...

-현장컨설팅, 현장실측, 디자인(3DC.G), CAD도면(평면도&입면도), 견적/시공 내역서, 시공 스케줄표.

-Exterior design.

-시공- "디자인트루"시공 (관리/감독, 감리, 소장)

 

*디자인트루 사이트에 게재된 디자인/시공/3D C.G/CAD 관련 이미지 및 디자인의 저작권은 디자인트루 본사에

있으므로 불법도용으로 인한 민형사상 법적 책임을 질 수  있습니다.

 

 

 

 

-3D C.G-

 

-CAD-

 

 

 

-시공전-

 

*디자인트루 사이트에 게재된 디자인/시공/3D C.G/CAD 관련 이미지 및 디자인의 저작권은 디자인트루 본사에

있으므로 불법도용으로 인한 민형사상 법적 책임을 질 수  있습니다.

 

기타 궁금한 사항은 "디자인트루"(DTG, 디티지)에 문의 주시기 바랍니다.

TEL : 031) 901-5774 

"디자인트루" 업무시간 : 월~금, 오전09시~오후06시 (토/일/공휴일 휴무)


 

'상업공간' 카테고리의 다른 글

H.. 사케바  (0) 2025.07.18
키즈까페 -치로와 친구들- Design Concept  (0) 2025.07.18
D.. 떡카페 디자인  (0) 2025.07.18
파비올라스 BAKERY & CAFE  (0) 2025.07.18
H.. 선반 디자인 의뢰  (0) 2025.07.18