Billiard club... (당구장&클럽). 디자인
ㆍ상업공간
design concept: "당구장&클럽" 디자인 및 설계 의뢰건...
트렌디한 당구장(클럽)
최신 트렌드의 당구장 또는 서양의 바&당구 클럽을 접목한 디자인.
창가측에 일반 좌석이 아닌 바텐을 응용하여 이국적 이미지 연출,
기둥마다 원목을 사용하영 빈티지 느낌 극대화 연출.
point color : 블랙, 우드, 그린
interior 구성 :
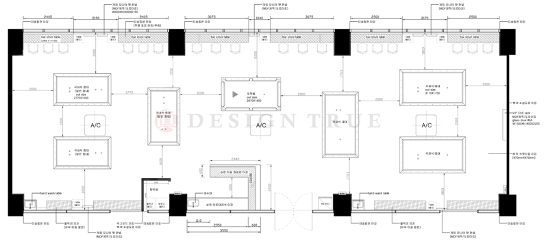
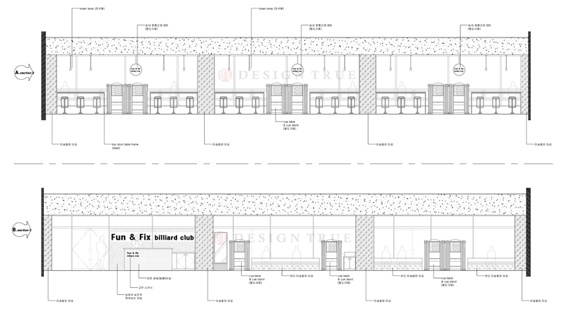
64평 규모로...총7EA 당구대, 카운터, 탕비실, 작업대 의 공간구성...
"DESIGN TRUE" work...
-현장컨설팅, 현장실측, CAD도면(평면 / 입면), 3D C.G(still image).
*디자인트루 사이트에 게재된 디자인/시공/3D C.G/CAD 관련 이미지 및 디자인의 저작권은 디자인트루 본사에
있으므로 불법도용으로 인한 민형사상 법적 책임을 질 수 있습니다.
-concept design-





-perspective..


-exterior..

-CAD..


-시공전 현장..


*디자인트루 사이트에 게재된 디자인/시공/3D C.G/CAD 관련 이미지 및 디자인의 저작권은 디자인트루 본사에
있으므로 불법도용으로 인한 민형사상 법적 책임을 질 수 있습니다.
기타 궁금한 사항은 "디자인트루"(DTG, 디티지)에 문의 주시기 바랍니다.
TEL : 031) 901-5774
"디자인트루" 업무시간 : 월~금, 오전09시~오후06시 (토/일/공휴일 휴무)
'상업공간' 카테고리의 다른 글
| L... dessert Cafe(디저트 카페) (1) | 2025.07.18 |
|---|---|
| 아무튼... Coffee Roasting Cafe(로스팅 카페) (1) | 2025.07.18 |
| 카페 다.해... churros Cafe(츄러스 까페) (0) | 2025.07.18 |
| 카페 구움... dessert Cafe(디저트 까페) (0) | 2025.07.18 |
| 황소갈비 B매장... 직화구이 전문점 (0) | 2025.07.18 |