G.. 사무실
ㆍ사무공간
"디자인트루" 031)901-5774 .
concept...
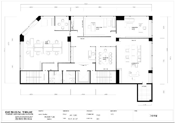
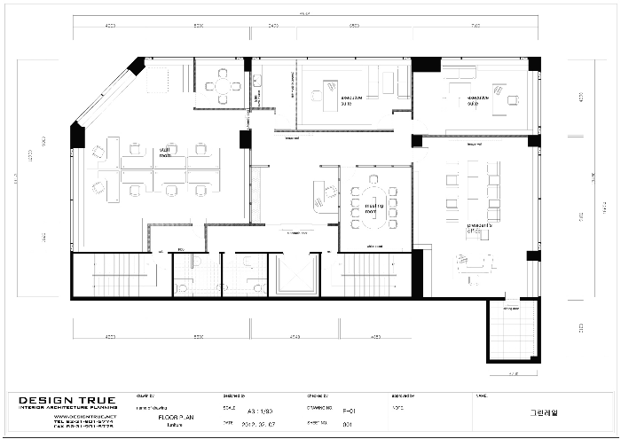
공간 .. 총 6개의 공간구성
메이플 컬러로 어둡지 않으며, 안정감을 주어 차분한 느낌 강조.
구성..
철거, 에어컨. 벽체시공, 천정시공, 바닥시공, 파티션, 책상및 기타 집기 구매, 각종 마감시공 등...











-CAD-

-시공전-


-시공중-



기타 궁금한 사항은 "디자인트루"(DTG, 디티지)에 문의 주시기 바랍니다.
TEL : 031) 901-5774
"디자인트루" 업무시간 : 월~금, 오전09시~오후06시 (토/일/공휴일 휴무)
'사무공간' 카테고리의 다른 글
| E.. 사무실 (0) | 2025.07.18 |
|---|---|
| T..디자인사무실(청담) (0) | 2025.07.18 |
| D.. 디자인 사무실 (0) | 2025.07.18 |
| F.. 사무실 (0) | 2025.07.18 |
| W..사무공간 디자인 ( 3D C.G ) 의뢰 (0) | 2025.07.18 |